Nueva Sede de la Orquesta Sinfónica Municipal de Caracas
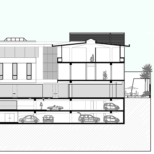
Edificación de 9.575,00 m2. de construcción, subdividida en cuatro sectores principales: Área Administrativa; Dependencias de la Orquesta; Servicios Complementarios; y Estacionamiento vehicular con una capacidad de 100 vehículos. La Propuesta consiste en dos cuerpos separados que afloran a la superficie del terreno, entrelazados en su base por dos niveles incrustados en el sub-suelo, en los que se encuentran la Sala de Ensayos General y el estacionamiento vehicular, además de depósitos y otros servicios complementarios. Anteroyecto desarrollado junto a la oficina Hernández y Riquezes, Arquitectos Asociados.







